地磅基础介绍
发布时间:2024.03.22作者:超级管理员来源:本站点击:476
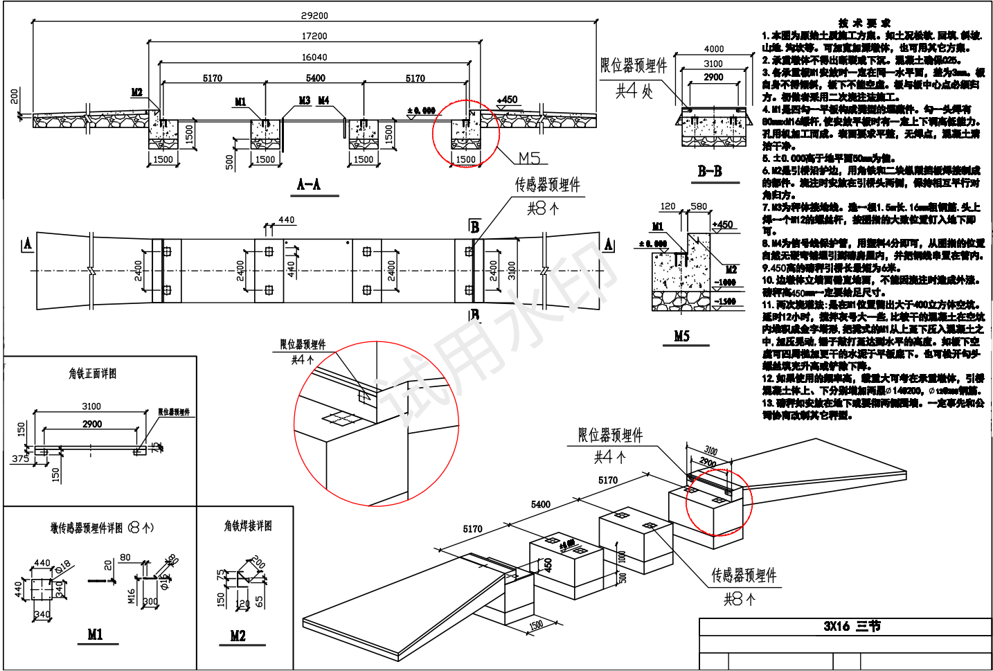
地磅基础介绍
一.地基分无基坑式与浅基坑式两种:
1.浅基坑式基础安装的秤体与地面齐平,其优点在于占用场地少,汽车上下秤较方便,但采用此形式时,须特别注意坑内的排水及干燥。
2.无基坑式基础安装的秤体会高出地面,故须制作可使汽车上下的引坡,因而其占用场地较大,但其良好的通风干燥环境,可确保地磅一直保持理想的使用状态,且易于维护。因基础是保证地磅正常使用及整体品质的一个组成部分,故基础制作须严格把握施工质量。
二.关于地磅基础施工的几点建议:
地磅基础的安装和施工位置应有良好的排水通道,安装的位置不能低于四周,否则会因地势低,下雨时造成积水,淹没地磅,损坏传感器。对于浅基坑更应设置排水通道。另外两端必须有足够长度的平直路供汽车上下秤台,两端自道要至少等于秤台长度。
三.地磅基础注意事项:
涤筑凝土基础,此基础须开挖到当地冻土线以下,在施工中应保证混凝土标号,浇预埋件是要保证水平度、位置度等尺寸,在浇灌混凝土时还要保证预埋件不移位。基础浇筑完工后,应按土建规范养护,混凝土达到设计强度指标方可安装地磅。
如果要缩短养护周期,允许施工时在专业技术人员指导下来取加"早强剂"等措施,为防雷您应根据本地条件设置一根接地桩,并确保接地电阻<4欧,从秤台中心的位置到磅房应铺设一根铁管,用于穿信号电缆线。基础施工时请参考我公司的基础图,一般的施工周期加上基础保养期,前后大概时间根据季节及天气因素都有关系。
